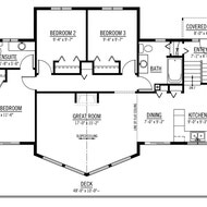
ClassicPine RidgeFind InspirationA compact home that feels surprisingly spacious with the large wall of windows in the prow of this home. Two bedrooms are in the back with the master bedroom off to the side complete with ensuite and sundeck access. This versatile design can be built on basement, daylight or walkout basement foundations in addition to the traditional slab or crawlspace foundations. |
![]() |
| Bathrooms |
|
|---|---|
| Bedrooms |
|
| Combined Liveable (sq. ft.) |
|
| Deck/Patio (sq. ft.) |
|
| Depth (ft.) |
|
| Height (ft.) |
|
| Main (sq. ft.) |
|
| Options |
|
| Stories |
|
| Type |
|
| Width (ft.) |
|
Design Your SpaceBuild a house you can call homeA dedicated team of in-house experts will help guide you through the complex process of planning, designing, purchase, and building. |
View More
of the Classic Collection
